
Parking Container
At its core, the Parking Container is a modular parking structure housed within a sturdy container, ensuring easy transportation and installation. Its modular design allows for customization to fit various spaces and accommodate different parking capacities, making it suitable for diverse environments ranging from urban centers to remote locations.
Product Introduction
Description
Introducing the Parking Container, a revolutionary solution designed to streamline parking logistics with unparalleled efficiency and versatility. This innovative product redefines traditional parking systems, offering a seamless blend of functionality, durability, and convenience.One of the key features of the Container is its versatility. It can be configured to serve as a standalone parking facility or integrated seamlessly with existing infrastructure, providing a flexible solution to parking challenges. Whether deployed temporarily for events or as a permanent fixture, this adaptable system offers unmatched scalability to meet evolving needs.In addition to its flexibility, the Parking Container prioritizes user experience and safety. It incorporates state-of-the-art technology for efficient vehicle management, including automated entry and exit systems, real-time monitoring, and secure access controls. This ensures smooth operations and enhances security for both vehicles and users.In summary, the Container represents a paradigm shift in parking solutions, offering a comprehensive yet adaptable approach to address the complexities of modern urban environments. With its modular design, advanced technology, durability, and sustainability features, it sets a new standard for parking infrastructure, empowering businesses, municipalities, and event organizers to optimize space utilization, enhance user experience, and promote environmental stewardship. Whether used for short-term parking needs or as a long-term solution, the Parking Container is poised to revolutionize the way we think about parking.
Product Advantages

Durability:
Built from high-quality steel containers, our Station Container boasts exceptional durability and weather resistance. It withstands harsh environmental conditions, ensuring long-lasting performance in both indoor and outdoor settings.

Modularity:
The Container's modular design allows for easy assembly, disassembly, and customization according to specific requirements. It offers endless possibilities for configuring space, ensuring maximum adaptability across different applications.

Mobility:
Equipped with lifting points and forklift pockets, the Container is easily transportable to various locations. Its mobility enables rapid deployment and relocation, making it an ideal solution for temporary or mobile operations.
Specification Description
|
External Size |
Length |
6000mm / 6058mm or customized |
|
Width |
2438mm / 3000mm or customized |
|
|
Height |
2600mm / 2791mm / 3000mm or customized |
|
|
Technical parameters |
Resistant temperature |
-40ºC to 40ºC |
|
Wind resistance |
210 km/h |
|
|
Earthquake resistance |
Grade 8 |
|
|
Building life |
25 years |
|
|
Fireproofing grade |
B2 |
|
|
Floor load |
2.5 Kn/m2 |
|
|
Roof load |
1.5 Kn/m2 |
|
|
Weight |
1500 kg |
Product Applications

Construction Sites:
The Container serves as an ideal office space, storage facility, or temporary accommodation on construction sites. Its rugged construction withstands the rigors of the construction environment while providing a comfortable workspace for onsite personnel.

Event Spaces:
From festivals to trade shows, the Container shines as a versatile event venue. It can be transformed into ticket booths, merchandise stalls, food concessions, or VIP lounges, providing organizers with a flexible and eye-catching solution for hosting successful events.

Emergency Shelters:
During disaster relief efforts or humanitarian missions, the Container offers immediate shelter and support. Its quick deployment, sturdy construction, and integrated utilities make it a reliable solution for providing temporary housing, medical facilities, or command centers in crisis situations.
Customized services
Custom Sizes:
We offer custom container homes in various sizes to meet your unique needs. These homes are durable, sustainable, and can be personalized to match your space requirements. Custom sizes are available, allowing you to choose the right dimensions and design for your specific needs.

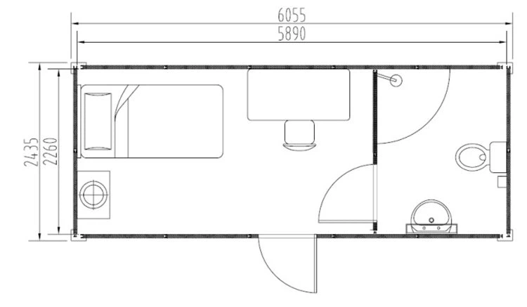
There is the different various house layout
The below one is just for your reference only. If you have the new project, welcome to show us, we can custom made as your request.


Standard House plans
It is for the office, with 1 door, 2 windows for office, living room, warehouse etc

Installation Steps
The installation of container houses usually includes the following steps:
Preparation: Clean and level the installation area, ensure compliance with local codes and building standards, and obtain necessary permits and approvals.
Foundation work: Constructing a solid foundation, such as a concrete foundation or foundation piles, to ensure the stability of the home.
Place the container: Use a crane or crane to place the container on the foundation, keeping it level and stable.
Structural Reinforcement: Make necessary structural reinforcements, including supports and attachment points, to ensure the safety and stability of the home.
Interior and exterior finishing: Installation of insulation, interior partitions, windows, doors and exterior paint and trim.
Hookups: Install electrical, plumbing and drainage systems to ensure the house has the necessary utilities.
Detail Work: Complete interior and exterior detail work, including flooring installation, painting, lighting, and set-up of kitchen and bathroom fixtures.
Final inspection: Conduct final inspections and tests t ensure the home is operating properly and meets safety standards.

These steps may vary depending on the size and specific requirements of the project, but they represent the general process for container home installation. Installation should be done by experienced professionals or qualified contractors to ensure the quality and safety of the home.



FAQ
Q: What are the key features of the Station Container?
A: The Station Container boasts a plethora of features designed to redefine traditional station setups. Firstly, its modular design allows for easy customization and scalability, enabling it to adapt to various station requirements and spatial constraints. Additionally, it incorporates advanced technology for seamless integration with existing infrastructure, including automated ticketing systems, real-time monitoring, and secure access controls. Furthermore, its robust construction ensures durability and longevity, making it suitable for both temporary deployments and permanent installations. Overall, the Station Container offers a comprehensive solution to streamline station operations while enhancing user experience and efficiency.
Q: How does the Station Container address the challenges of modern transportation hubs?
A: The Station Container addresses the challenges of modern transportation hubs through its innovative design and functionality. By providing a modular and adaptable solution, it offers flexibility to accommodate fluctuating passenger volumes and changing spatial constraints. Its integration of advanced technology facilitates efficient management of passenger flow, ticketing, and security, thereby enhancing overall station operations. Moreover, its durable construction ensures resilience against wear and tear, minimizing maintenance costs and downtime. With its focus on scalability, efficiency, and durability, the Station Container is poised to revolutionize the way transportation hubs are designed and operated, meeting the evolving needs of modern travelers and operators alike.
Q: How does the Station Container contribute to sustainable transportation infrastructure?
A: The Station Container contributes to sustainable transportation infrastructure in several ways. Firstly, its modular design promotes efficient space utilization, reducing the need for extensive land development and minimizing environmental impact. Additionally, optional features such as solar panels and rainwater harvesting systems enable the Station Container to operate off-grid and reduce reliance on conventional energy sources. Moreover, its integration of advanced technology facilitates optimized station operations, leading to reduced energy consumption and emissions. By promoting eco-friendly practices and minimizing environmental footprint, the Station Container aligns with the growing emphasis on sustainability in transportation infrastructure development.
Hot Tags: parking container, China parking container manufacturers, suppliers, factory, round steel buildings, Steel Structure workshop, commercial steel garages, Modular Portable Site Office Cabin, metal structures, steel span buildings
You Might Also Like
Send Inquiry







